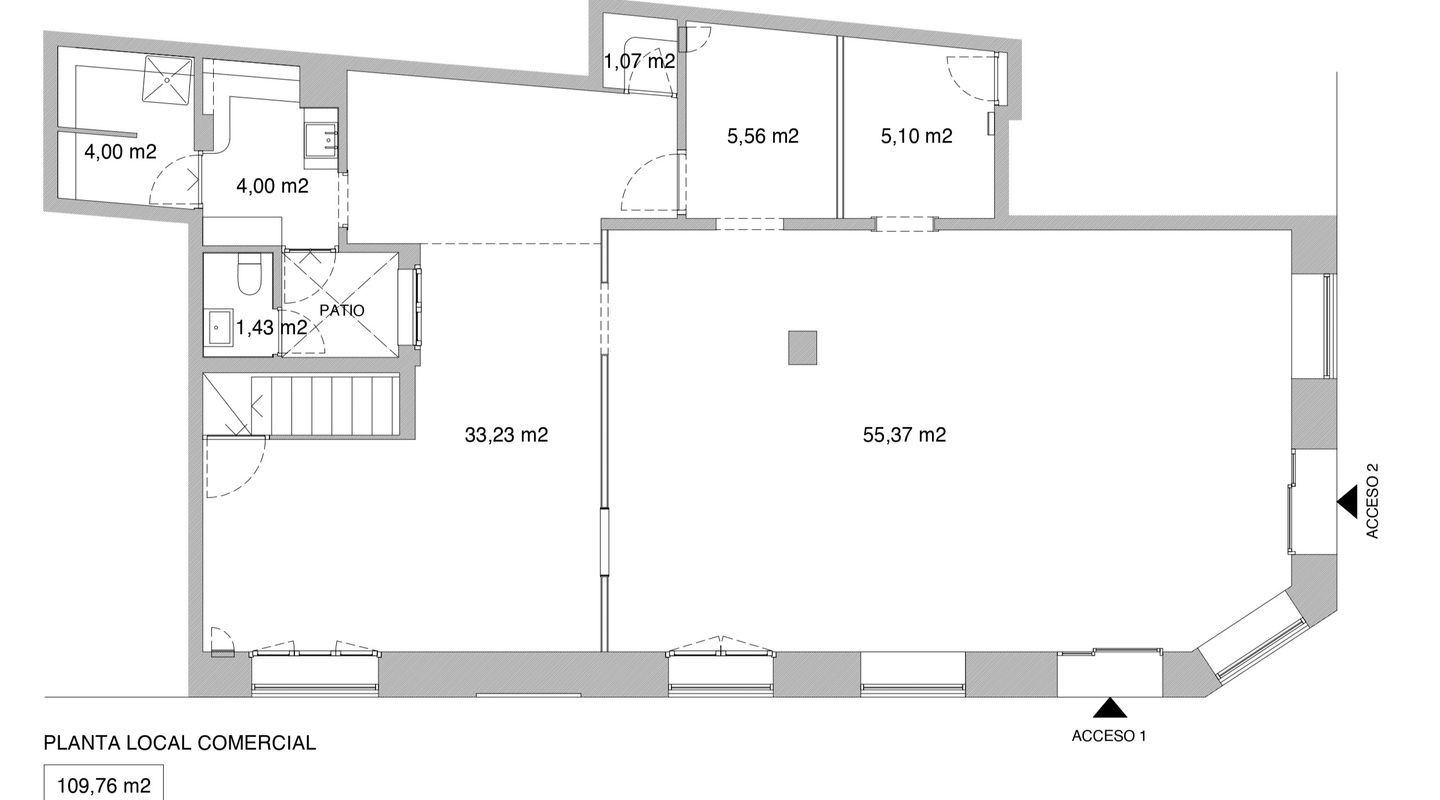
Propiedad comercial de 168.5m² (109,76m² local + 58,74m² sótano) en Llucmajor, ubicada en una esquina junto a Plaza Espanya, con calle peatonal muy concurrida, esquina con calle lateral de paso rodado, con entradas desde ambas calles. Apta para despachos como los de abogados, gestorías, inmobiliarias, agencias de seguros, tiendas de ropa, decoración, entre otros, así como para otros negocios no relacionados con hostelería, supermercados o tiendas de alimentación. El sótano de 58,74m² es ideal para almacenamiento o actividades complementarias al negocio.


























En progreso/ Excluido


















































