Esta preciosa villa con orientación suroeste se encuentra en el Puerto de Sóller y disfruta de magníficas vistas al puerto y a la Sierra de Tramuntana.
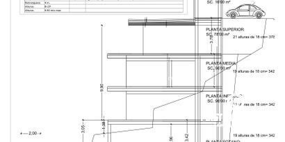
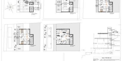
La superficie construida de aproximadamente 356 m² se distribuye en 3 plantas. La planta baja cuenta con recibidor, salón, cocina con comedor y acceso directo a la terraza y a la gran piscina de agua salada, un dormitorio y un baño. La planta superior ofrece tres dormitorios más y un baño. En el sótano encontramos el garaje. Esta propiedad, en perfecto estado de conservación, también cuenta con una amplia azotea con impresionantes vistas. La espaciosa villa está equipada con doble acristalamiento, calefacción central de gasóleo, aire acondicionado, cocina totalmente equipada y mucho más.






























































