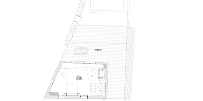
Esta atractiva parcela urbanizable se encuentra muy cerca del encantador pueblo de Es Llombards. El proyecto ya ha sido presentado y se espera la licencia de construcción en breve. Desde la planta baja se disfrutan unas vistas impresionantes del pintoresco paisaje rústico y de las majestuosas montañas. La primera planta ofrece, además, una vista panorámica de los pueblos iluminados de Ses Salines y Llombards: el escenario perfecto para su futuro hogar.










En progreso/ Excluido











