Great renovation project in Sóller.
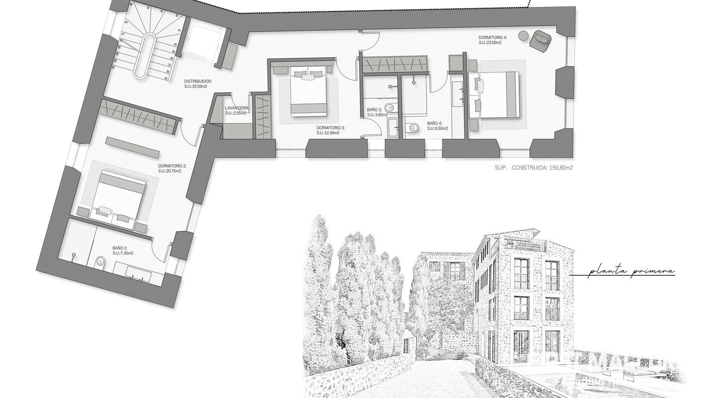
It is a renovation project in a quiet area on the outskirts of Sóller. Currently there is an old stone house of about 600m2 built on a plot of about 4,000m2. This project offers 2 living rooms, 5 bedrooms with 5 private bathrooms, a kitchen, a wine cellar, a gym, a 9x3m swimming pool and parking spaces for several cars. The construction materials provided are of very high quality. In addition, there is still the possibility of adapting the layout to the wishes of the future owner.


























In progress/ Exempt








































































