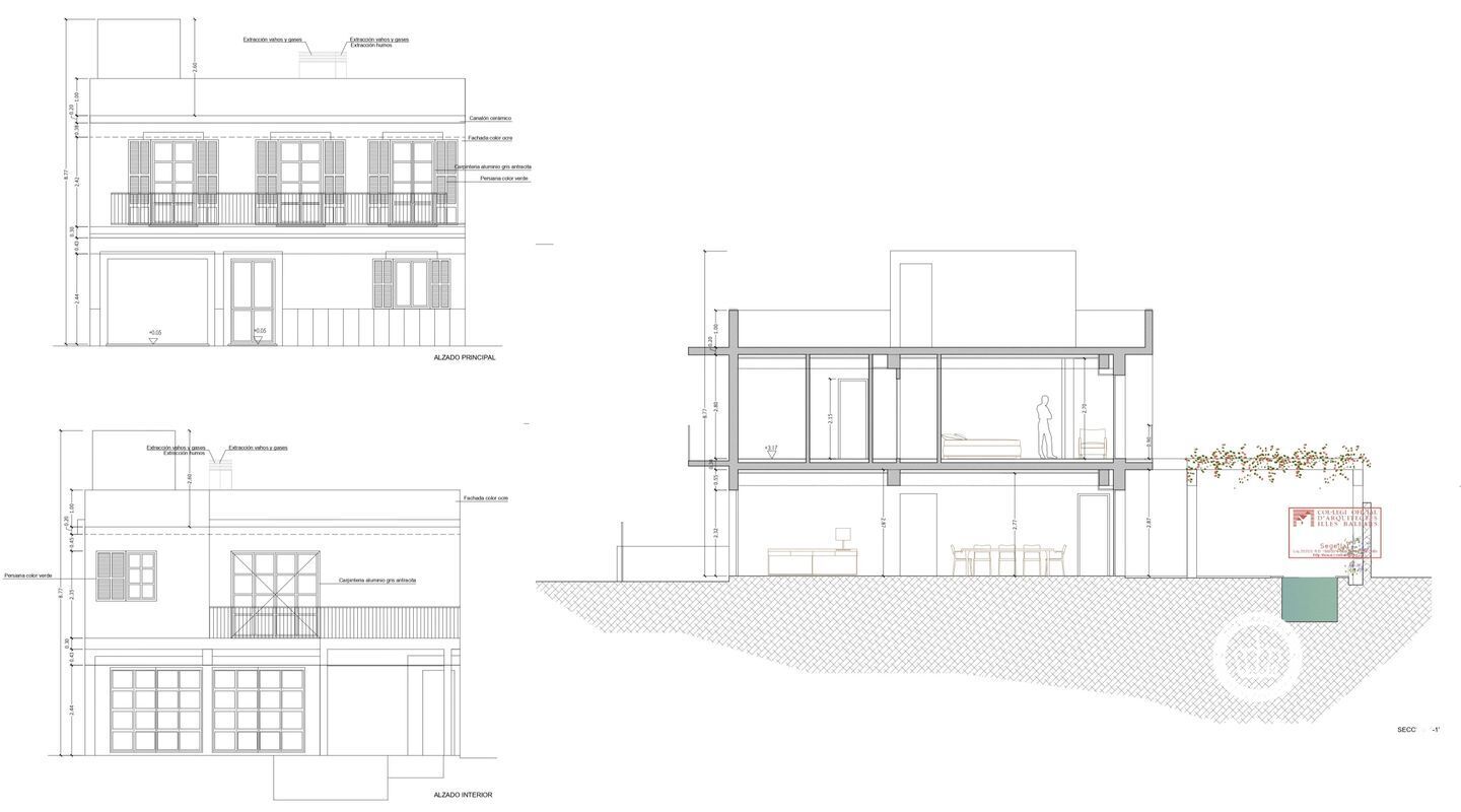
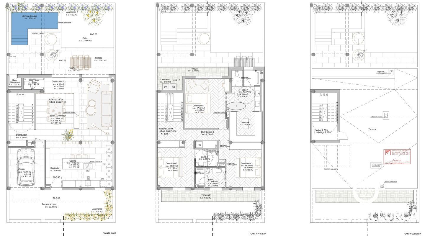
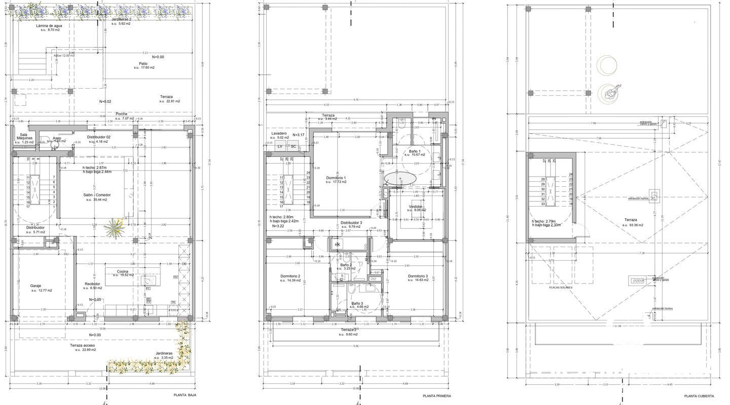
Se vende un proyecto único en Alcúdia, ideal para inversores. Solar de 200 m², superficie construida de 198 m². Con una ubicación estratégica y la licencia de construcción ya incluida, esta propiedad ofrece un alto potencial de rentabilidad.
Características del Proyecto: 3 habitaciones dobles con balcones, incluyendo una master suite con vestidor y terraza privada. 4 baños diseñados para máxima comodidad. Terraza superior ideal para disfrutar las vistas. Espaciosa terraza y jardín con piscina privada. Parking privado para 1 coche y varias motos. Chimenea, añadiendo calidez al diseño.
Ventajas para Inversores: Flexibilidad para personalizar el proyecto según sus necesidades. Posibilidad de añadir una planta más para ampliar la construcción. Precio incluye terreno, proyecto y licencia (tasas pagadas y arquitecto incluido).
¡Contáctenos para más información!










En progreso/ Excluido

















