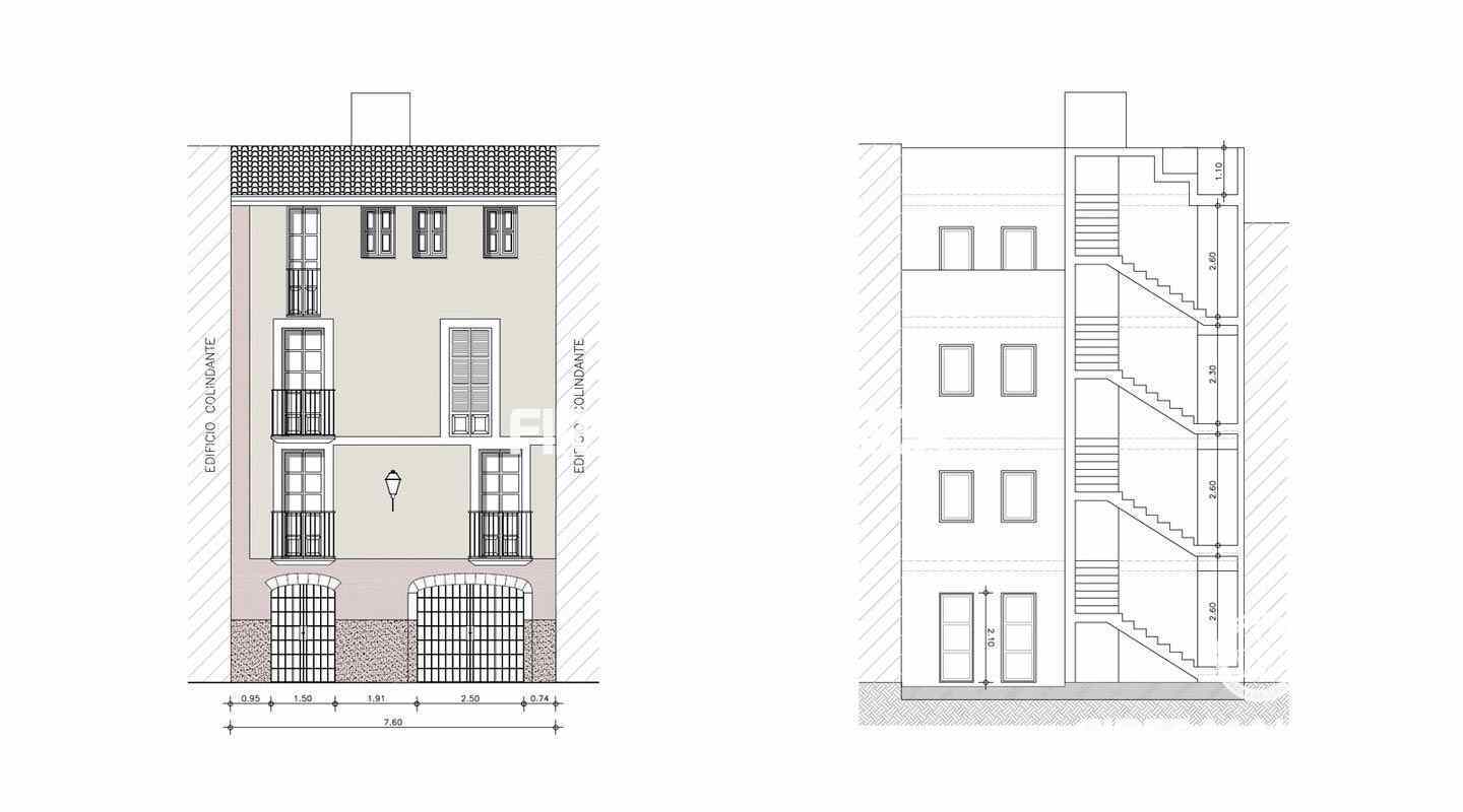
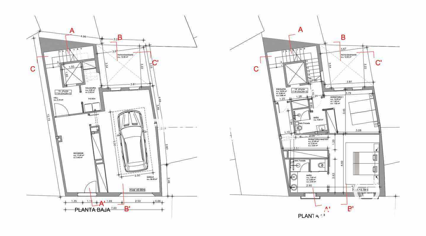
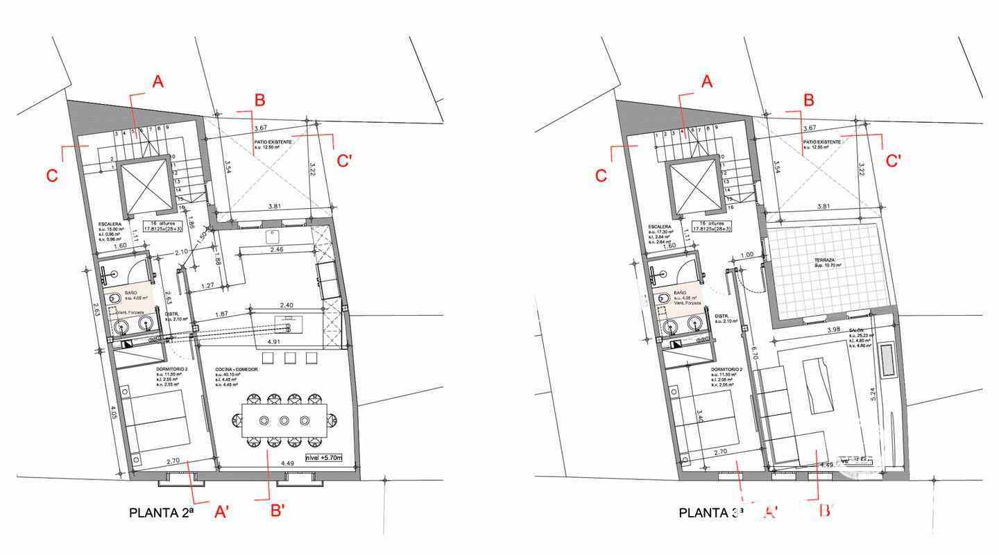
Este solar se encuentra en el centro de Sa Gerrería en una calle muy tranquila.
Existe un pre-proyecto que incluye 4 dormitorios, un parking privado y una pequeña piscina en la azotea. Una buena oportunidad de construirse una casa a su propio gusto. También se podría dividir en diferentes apartamentos






En progreso/ Excluido






















