Представляем уникальную возможность в Кала Мурада: впечатляющий участок площадью 3.112 м² на первой линии моря, с утвержденным исполнительным проектом и действующим разрешением на строительство. Участок был полностью расчищен, включая снос предыдущего дома, и представляет собой идеальный холст для строительства роскошной недвижимости.
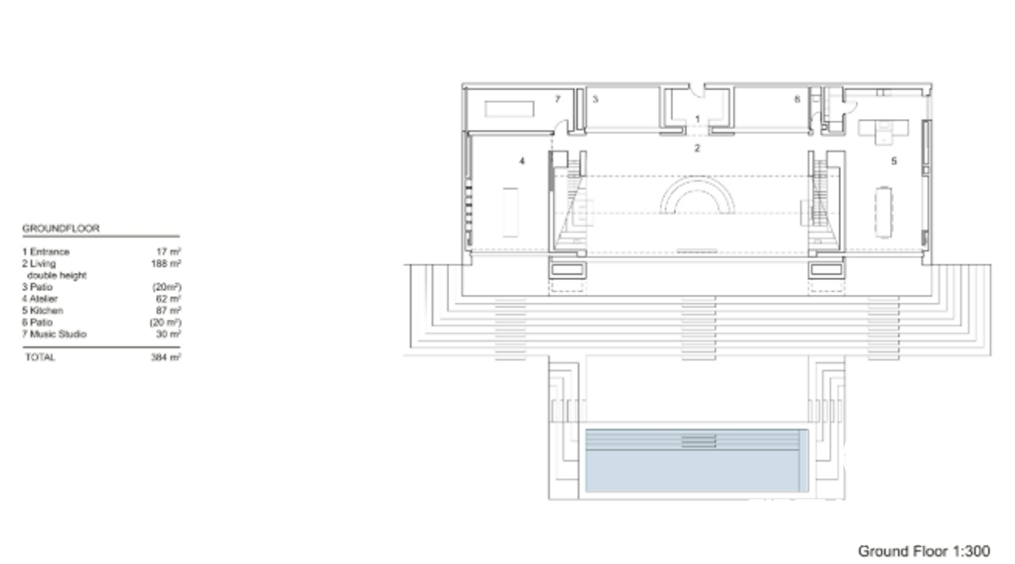
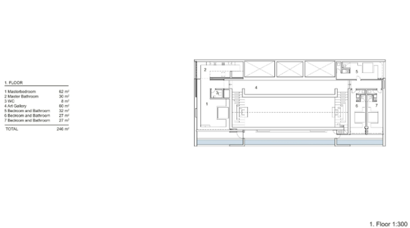
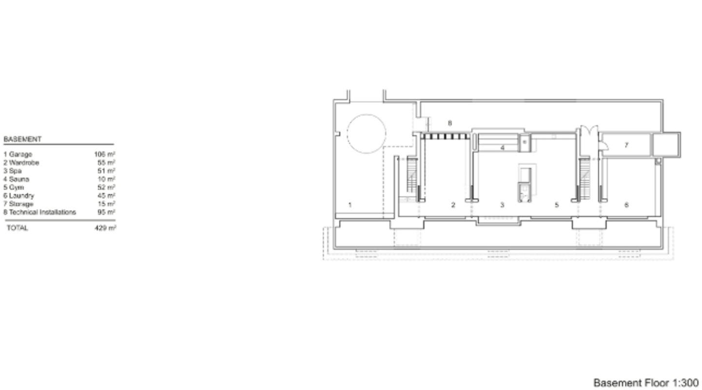
Текущий проект предусматривает строительство потрясающей дизайнерской виллы площадью около 1 000 м², которая будет включать в себя четыре просторные спальни с непревзойденными видами, пять ванных комнат с эксклюзивным дизайном, художественную комнату, рабочий кабинет, тренажерный зал, частную сауну, два бассейна, джакузи и впечатляющие террасы и благоустроенные открытые зоны.
Кроме того, есть возможность запросить продление разрешения на строительство в случае, если вы захотите разработать другой проект, адаптированный к новым потребностям.
Привилегированное место на побережье Майорки, идеальное для тех, кто ищет эксклюзивность, современность и непревзойденную связь с морем.
Свяжитесь с нами для получения дополнительной информации и частного визита.






















Энергетический сертификат в процессе














